lod.jpg


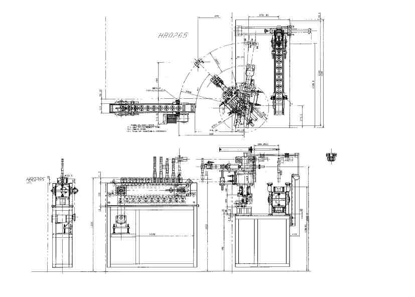
加工機自動投入搬出用ローダ、コンベア